Cuando entras en una casa hoy en día te preguntas cómo estará distribuida. Si haces una compra o un alquiler, te habrás detenido en sus dimensiones, la ubicación y forma del salón, las habitaciones… el pasillo, la cocina, los servicios… Sobre el plano podemos encontrar una distribución racional, con una información de las dimensiones del espacio y sus puntos de luz; también de sus funcionalidades como la calefacción u otros dispositivos.

La pregunta que nos detiene es, desde cuándo las casas son como son, es decir desde cuándo se comenzó a desarrollar una planificación domestica racional de los espacios.

Hasta la llegada del siglo XX, las distribuciones de las casas y su funcionalidad no se planteaban desde criterios racionales. Las razones por las cuales, unas casas u otras, tenían diferentes dimensiones, techos más altos de lo habitual, o distinta distribución en un mismo bloque, se debían esencialmente, a las capacidades económicas de sus propietarios, o a propósitos de otra índole, más allá de la racionalidad del proyecto.

En resumidas cuentas su proyección no se dirimía por una cuestión de habitabilidad, ni de raciocinio... A caso una cuestión de estética. Muchos conocemos inmuebles de más de 130 años que a día de hoy nos preguntamos por su mala distribución, o por los impedimentos que puede tener un techo demasiado alto –aunque a mí me encanten- para calentar una casa, o de por qué se tomó una decisión un tanto incomprensible para un determinado pasillo.

La racionalidad

A finales del siglo XIX y principios del veinte se comenzó a desarrollar el estilo modernista en la Arquitectura, la herencia de las ampulosas estancias que el romanticismo había brindado en palacios o casas burguesas, necesitaban de otro perfil para que la evolución de las tendencias tuviera un reflejo en la arquitectura.

El modernismo en España, el Art Noveau en Francia, el estilo liberty en Italia, el Modern style en Gran Bretaña o la jugendstil alemana, era una evolución de la arquitectura desde una visión naturalista del entorno, donde los elementos que brindaba la naturaleza servirían como fuentes de inspiración en la ornamentación y proyección de los espacios. La consecuencia son estancias donde la línea curva, y lo estética tenían más peso que el rigor de la funcionalidad. Las obras que surgen son de un valor relevante, como mero ejemplo podemos contemplar la arquitectura de Gaudí o William Morris. También en la pintura o en el apogeo de la ilustración con artista como Gustav Klimt o Alexandre Steinlen se dejó ver esta impronta florida.

Adolf Loos (1870-1933) criticó este estilo por sus ampulosas formas, tejidas con belleza pero sin racionalidad, ni funcionalidad. Se erigió así como un rebelde dentro de la conservadora Viena de 1900, un hombre que recorrió desde los primeros oficios, como el de albañil, un espectro de labores que le llevaría a ser interiorista, diseñador de muebles y arquitecto.

“Liberé a la humanidad de trabajos inútiles”

En su epitafio sobresale la leyenda “liberé a la humanidad de trabajos inútiles”, desde aquellos tiempos de albañil y encofrador en Chicago, Loos ya reflexionaba sobre los costes y ornamentos que los edificios acarreaban y que no suponían una verdadera mejora en comodidad, ni calidad de vida de sus moradores.

En su Viena natal comenzaría a desarrollar toda una hilera de proyectos desde el Ministerio de la Vivienda con ese objetivo, la mejora de los espacios acordes a las necesidades humanas. Negó por tanto al modernismo y sus derivas y se acogió a una esquematizada y racional visión de los edificios domésticos.

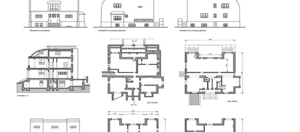
Sus planteamientos siempre partían del interior de las casas, nunca desde la visión externa. El resultado del inmueble decía “era la representación de las soluciones interiores”. Desde una visión racional de cada una de las estancias, contemplaba que un salón, o el hall, tenían que ser espacios grandes y amplios, con techos elevados y ventanales. En ellos las personas podrían moverse en libertad y charlar, el espacio permitía la invitación y el encuentro social.

Los pasillos y zonas de paso también deberían ser amplias, al igual que la cocina, donde las personas podían moverse con facilidad. Al contrario, las habitaciones no deberían tener amplios techos, su objetivo era el descanso y la calidez, es decir el recogimiento, por lo que la configuración de las antiguas estancias quedaban obsoletas. A este planteamiento de construcción lo denominaría Raumplan. Así lo podemos ver en la Casa Steiner (Viena, 1910), o la Casa Muller (Praga 193) o la residencia Moller (Viena 1927-1928). De igual forma Loos dirigió su atención al mobiliario, lámparas, cómodas, sillas mesas, cajoneras, escritorios, rompiendo la ampulosidad y recargamiento de las líneas anteriores –muy influenciado por el estilo inglés- para enfocarse en la ergonomía y la funcionalidad con creaciones que posteriormente supondrían una influencia para la Bauhaus, esta escuela mucha más racional, y sobre todo minimalista.

La exposición “Espacios privados”

La exposición comisariada por Pilar Parcerisas, que define al creador vienés como el “Duchamp de la arquitectura” -por las líneas de conexión que tuvo con el artista francés, sobre todo por su actitud rupturista- propone 120 muebles (218 piezas) que se crearon para construir funcionalidad y utilidad. Las piezas que se muestran van desde el año 1899 hasta el año 1931. Destacan las piezas de sillón, o las sillas de mimbre o la liberty. Los sillones biedermeier o los sofás Chesterfield; lámparas de mesa y de techo… o la recreación del salón de la villa Müller, junto con planos de la nueva proyección de las casas.

Podemos disfrutar de la exposición hasta el 24 de Junio en El Caixaforum de Madrid.